山野商事

貸事務所

東大阪市加納6丁目事務所

【2026/1/28公開】
東大阪市加納6丁目で空き予定の物件がでました。
ご検討くださいませ!

【DATA】
JR学研都市線/住道駅 徒歩17分
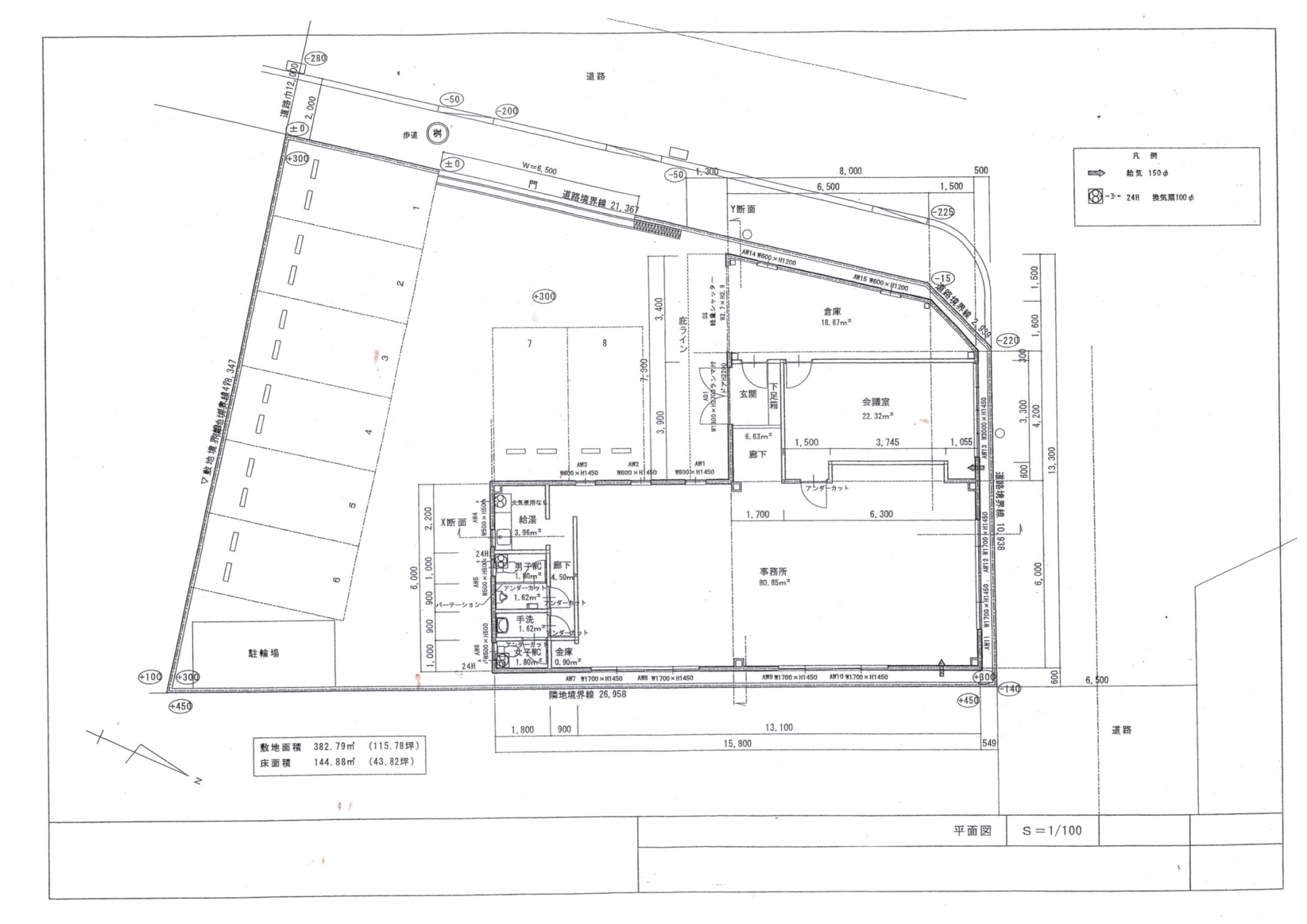
床面積/144.87㎡ 土地面積/382.79㎡ 
賃料/49.5万円(消費税含)  保証金/270万円  解約引/99万円
エアコン/OAフロア/現状渡し/駐車スペース8台
2026年7月末空予定
外観写真
平面図
現地
現地

お問い合わせ

当社は東大阪市東部エリアを中心として、事業用土地・工場・倉庫・駐車場などのご紹介を行っております。
売買や賃貸に関するご相談、不動産に関する質問など、何でもお気軽にご相談ください。

山野商事
〒578-0915
大阪府東大阪市古箕輪1-16-1
TEL 072-962-3727
FAX 072-964-7246
お問い合わせはこちらから
PAGE TOP